Modernes Fertighaus – Modell Ulm
Price
ANMELDEN / REGISTRIEREN, UM PREISE ANSEHEN REGISTRIEREN, UM PREISE ANSEHENDetails
4
ZIMMER
ZIMMER
5
BADEZIMMER
BADEZIMMER
2
ETAGEN
ETAGEN
343
m2
m2
Bauart: Mediterrane Wärme
Typologie: O-Form
Volumetrie: Perforiertes Würfel-Design
Informationen
Das Modell Ulm Modulhaus ist als Fertighaus in minimalistischem Design gebaut. Wobei die Module selbst den Raum und die Ästhetik des Hauses prägen.
Zwei durch Böden gut getrennte Volumen sind zwischen ihnen verschoben. Wodurch die Veranda Räume und Schatten fast umsonst. Das Aussehen der großen Fenster macht das Haus. Minimalistisch und mit dominanten Ansichten.
Im Erdgeschoss öffnen sich alle Räume zum Garten hin. Mit der Inselküche, dem Esszimmer, dem Wohnzimmer und dem Hauptschlafzimmer. Die Treppe in minimalistischem Design dominiert diesen Raum dank ihrer spektakulären doppelten Höhe. Die das Bild eines eleganten Hauses vermittelt und beim Hinaufgehen Ausblicke eröffnet. Im Erdgeschoss ist es immer interessant, ein komplettes Schlafzimmer mit Bad und Ankleideraum zu haben. Das auch für Gäste genutzt werden kann. Eine weitere Toilette auf dieser Etage ist notwendig und befindet sich neben dem Eingang. Sehr funktionell, und auch hinter den Garderobenschränken versteckt.
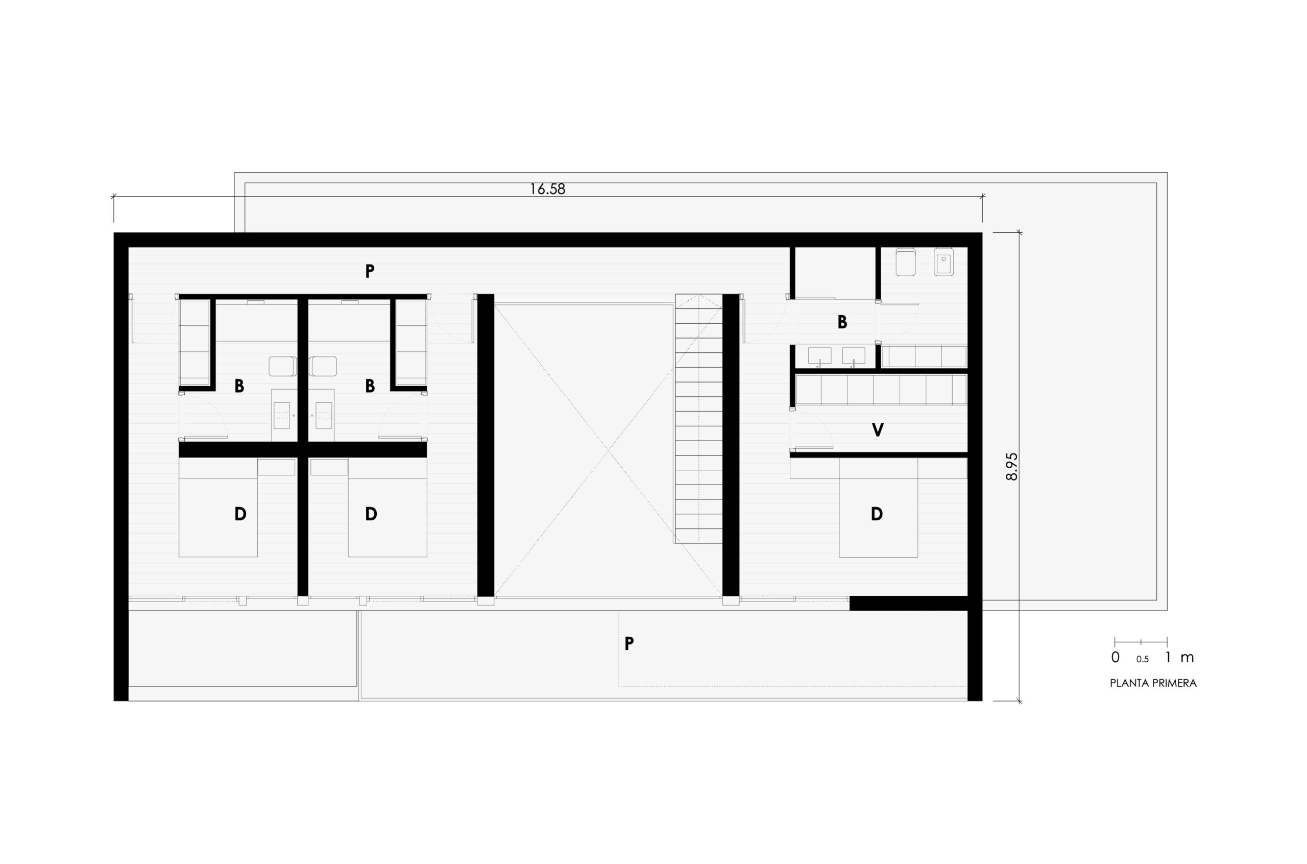
Das Obergeschoss zeichnet sich durch die Größe seiner Räume aus. Drei Schlafzimmersuiten mit Bad und Ankleidezimmern machen das Haus zu einem echten räumlichen Luxus. Die Aufteilung wird durch die durchgehende Terrasse vervollständigt. Die allen Schlafzimmern dient.
Ein spektakuläres Haus, das mit den Materialien dekoriert und angepasst werden kann. Die am besten zu der Gegend und dem Geschmack seines zukünftigen Besitzers passen.
Planzeichnung
Erdgeschoss
Obergeschoss
| WOHNFLÄCHE | 271,13 m2 |
| HAUS | 221,73 m2 |
| VERANDEN | 49,40 m2 |
| ERDGESCHOSS | |
| HAUS | 124,34 m2 |
| Eingangsbereich | 8,48 m2 |
| Wohnzimmer | 34,05 m2 |
| Esszimmer | 24,24 m2 |
| Küche | 26,21 m2 |
| Waschraum | 4,07 m2 |
| Badezimmer | 4,08 m2 |
| Toilette | 2,95 m2 |
| Ankleideraum | 6,70 m2 |
| Schlafzimmer 01 | 13,56 m2 |
| VERANDEN | 38,97 m2 |
| Veranda Wohn- und Esszimmer | 38,97 m2 |
| OBERGESCHOSS | |
| HAUS | 97,39 m2 |
| Verteilungsraum | 11,83 m2 |
| Badezimmer 02 | 4,83 m2 |
| Badezimmer 03 | 4,83 m2 |
| Schlafzimmer 02 | 12,45 m2 |
| Schlafzimmer 03 | 12,45 m2 |
| Hauptschlafzimmer | 14,46 m2 |
| Hauptankleideraum | 4,94 m2 |
| Hauptbadezimmer | 7,38 m2 |
| Doppelhöhe | 24,22 m2 |
| VERANDEN | 10,43 m2 |
| Veranda Schlafzimmer | 10,43 m2 |
| NUTZFLÄCHE | 342,66 m2 |
| HAUS | 268,79 m2 |
| VERANDEN | 73,87 m2 |
| ERDGESCHOSS | |
| Haus | 149,07 m2 |
| Veranden | 45,27 m2 |
| OBERGESCHOSS | |
| Haus | 119,72 m2 |
| Veranden | 28,60 m2 |
Verwandte Hausmodelle
Modernes Fertighaus – Modell Wiesbaden
4
Zimmer
Zimmer
5
Badezimmer
Badezimmer
342
m2
m2
Bitte registrieren Sie sich um die Preise zu sehen
Modernes Luxushaus – Modell Westhafen
4
Zimmer
Zimmer
4
Badezimmer
Badezimmer
283
m2
m2
Bitte registrieren Sie sich um die Preise zu sehen
Modernes Fertighaus – Modell Kiel
5
Zimmer
Zimmer
4
Badezimmer
Badezimmer
358
m2
m2
Bitte registrieren Sie sich um die Preise zu sehen
English