Modernes Fertighaus – Modell Hahnwald
Price
ANMELDEN / REGISTRIEREN, UM PREISE ANSEHEN REGISTRIEREN, UM PREISE ANSEHENDetails
ZIMMER
BADEZIMMER
ETAGEN
m2
Informationen
Gebogenes Design in diesem Haus auf einem Grundstück mit einem eleganten minimalistischen Design und einfach, aber voller Persönlichkeit. Ein einziges Volumen mit großen Räumen voller Licht dank eines Innenhofs.
Der Innenraum ist in zwei Bereiche unterteilt, einen tagsüber mit Blick auf den Pool und einen anderen, intimeren Bereich mit Zimmern, die auf die Rückseite des Gebäudes blicken. Beide Bereiche sind dank einer großen Garderobe, die sich über die gesamte Länge des Hauses erstreckt, unabhängig voneinander.
Für seine begrenzte Fläche ist es ein komplettes Haus mit drei Schlafzimmern und zwei Bädern, einer Büroküche und einem großen Wohn-Esszimmer. Ein wunderschöner Innenhof, der die Küche beleuchtet und sie vom Wohn-Esszimmer trennt, bereichert dieses charmante einstöckige Haus.
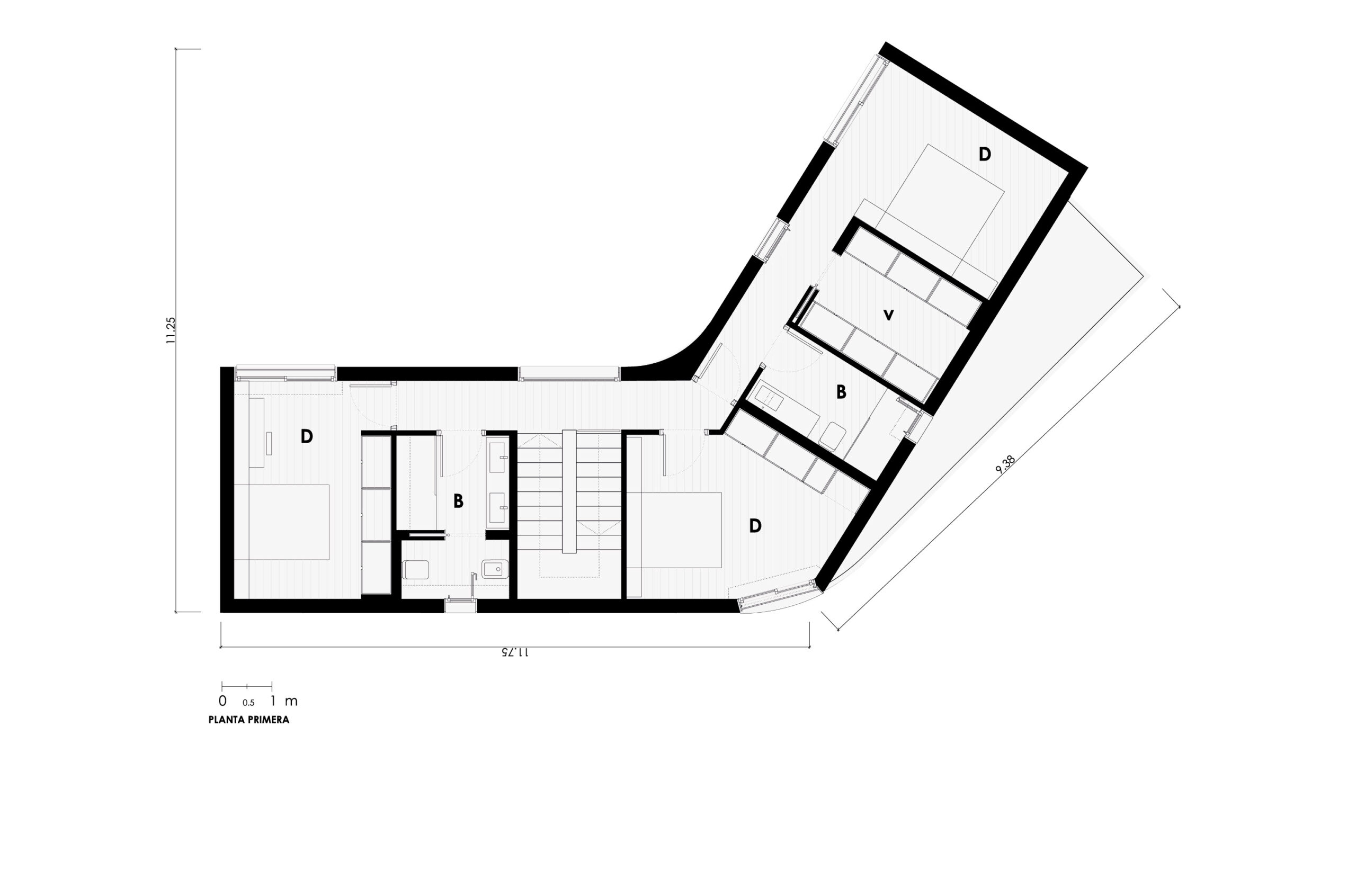
Planzeichnung
Erdgeschoss
Obergeschoss
| WOHNFLÄCHE | 155,72 m2 |
| HAUS | 143,02 m2 |
| VERANDEN | 12,70 m2 |
| ERDGESCHOSS | |
| HAUS | 72,79 m2 |
| Eingangsbereich | 5,25 m2 |
| Eingangsbereich-Treppe | 4,03 m2 |
| Wohn- und Esszimmer | 40,33 m2 |
| Toilette | 5,25 m2 |
| OBERGESCHOSS | |
| HAUS | 129,97 m2 |
| Eingangsbereich | 2,10 m2 |
| Eingangsbereich-Treppe | 13,15 m2 |
| Treppe | 9,11 m2 |
| Verteilungsraum | 5,22 m2 |
| Verteilungsraum-Treppe | 17,80 m2 |
| Toilette | 5,90 m2 |
| Toilette 01 | 6,40 m2 |
| Ankleideraum | 16,10 m2 |
| Schlafzimmer 01 | 19,70 m2 |
| Schlafzimmer 02 | 16,52 m2 |
| Schlafzimmer 03 | 11,80 m2 |
| Schlafzimmer 04 | 11,80 m2 |
| Schlafzimmer 05 | 24,80 m2 |
| NUTZFLÄCHE | 195,35 m2 |
| HAUS | 185,65 m2 |
| VERANDEN | 96,88 m2 |
| ERDGESCHOSS | |
| Haus | 87,86 m2 |
| Veranden | 11.13 m2 |
| OBERGESCHOSS | |
| Haus | 74,04 m2 |
| Pergola | 43,29 m2 |
Verwandte Hausmodelle
Modernes Fertighaus – Modell Bogenhausen
Zimmer
Badezimmer
m2
Modulares Giebeldachhaus – Modell Gstaad
Zimmer
Badezimmer
m2
Luxus-Fertighaus – Modell Dortmund
Zimmer
Badezimmer
m2
English