Modernes Fertighaus – Modell Bogenhausen
Price
ANMELDEN / REGISTRIEREN, UM PREISE ANSEHEN REGISTRIEREN, UM PREISE ANSEHENDetails
ZIMMER
BADEZIMMER
ETAGEN
m2
Informationen
Minimalistisch und mediterraner Charme. Dieses attraktive zweigeschossige L-förmige Haus entsteht durch die Anordnung der Volumen um den zentralen Raum. Er wird vom Wohnzimmer und der Treppe dominiert, verbindet die Etagen miteinander und öffnet sich durch die Veranda nach außen. Das Erdgeschoss wird durch ein Wohn-Esszimmer, das durch große Fenster zur Veranda hin offen ist, und eine große, funktionelle Küche mit Insel vervollständigt. Das Hauptschlafzimmer mit Ankleideraum und eigenem Bad schließt das L ab und rahmt den Außenbereich ein. Über die Treppe gelangt man in den ersten Stock, wo sich 3 Schlafzimmer und ein komplettes Bad befinden, die für mehr Privatsphäre vom Rest des Hauses getrennt sind.
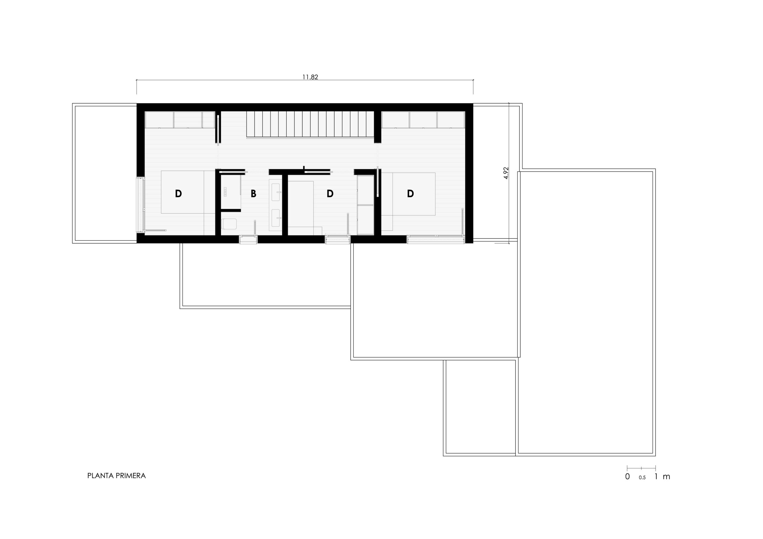
Planzeichnung
Erdgeschoss
Obergeschoss
| WOHNFLÄCHE | 191,97 m2 |
| HAUS | 154,78 m2 |
| VERANDEN | 37,19 m2 |
| ERDGESCHOSS | |
| HAUS | 109,22 m2 |
| Eingangsbereich | 2,56 m2 |
| Eingangsbereich-Verteilungsraum | 4,83 m2 |
| Eingangsbereich-Ankleideraum | 10.99 m2 |
| Wohnzimmer | 26,69 m2 |
| Esszimmer | 40,86 m2 |
| Küche-Esszimmer | 37,45 m2 |
| Waschraum | 3,15 m2 |
| Toilette | 11,53 m2 |
| Toilette 01 | 4,50 m2 |
| Schlafzimmer 01 | 12,86 m2 |
| Schlafzimmer 02 | 6,44 m2 |
| VERANDEN | 37,19 m2 |
| OBERGESCHOSS | |
| HAUS | 89,31 m2 |
| Treppe | 9,11 m2 |
| Verteilungsraum | 5,22 m2 |
| Badezimmer 02 | 6,61 m2 |
| Ankleideraum | 9,06 m2 |
| Schlafzimmer 02 | 10,81 m2 |
| NUTZFLÄCHE | 231,17 m2 |
| HAUS | 192,97 m2 |
| VERANDEN | 38,20 m2 |
| ERDGESCHOSS | |
| Haus | 192,97 m2 |
| Veranden | 38,20 m2 |
| OBERGESCHOSS | |
| Haus | 58,15 m2 |
Verwandte Hausmodelle
Modernes Fertighaus – Modell Hannover
Zimmer
Badezimmer
m2
Modulares Giebeldachhaus – Modell Gstaad
Zimmer
Badezimmer
m2
Modernes Haus aus Beton – Modell Dresden
Zimmer
Badezimmer
m2
English