Modernes Fertighaus – Modell Bonn
Price
ANMELDEN / REGISTRIEREN, UM PREISE ANSEHEN REGISTRIEREN, UM PREISE ANSEHENDetails
ZIMMER
BADEZIMMER
ETAGEN
m2
Informationen
Das inHAUS Modulhaus Design Bonn ist ein zweigeschossiges Fertighaus, das Funktionalität, Form und Design mit einem sehr attraktiven und modernen Grundriss verbindet.
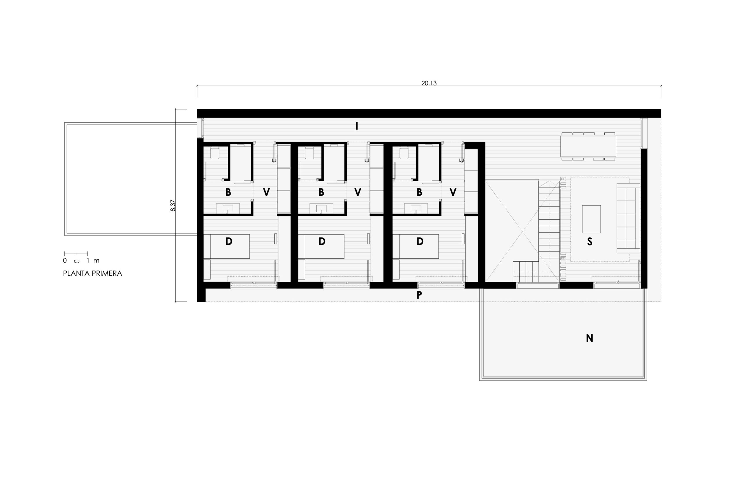
Das Erdgeschoss des Hauses ist L-förmig angelegt und trennt so den Tagesbereich vom Nachtbereich. Im Obergeschoss befinden sich das Arbeitszimmer und drei weitere Schlafzimmer, jeweils mit eigenem Bad. Das Obergeschoss überragt die untere Etage, so dass eine große Veranda zum Tagesbereich und eine weitere zum Zugangsbereich hin entsteht.
Eine komplett ausgestattete Wohnung, in der alle wichtigen Funktionen im Erdgeschoss untergebracht sind und die eine große Unabhängigkeit von den übrigen Schlafzimmern aufweist. Komfort und Eleganz in diesem geräumigen und leistungsstarken Fertighaus.
Planzeichnung
Erdgeschoss
Obergeschoss
| WOHNFLÄCHE | 359,26 m2 |
| HAUS | 261,91 m2 |
| VERANDEN | 62,45 m2 |
| TERRASSE | 34,90 m2 |
| ERDGESCHOSS | |
| HAUS | 136,80 m2 |
| Eingangsbereich | 20,10 m2 |
| Esszimmer | 42,10 m2 |
| Küche | 23,90 m2 |
| Toilette | 3,10 m2 |
| Toilette 01 | 11,00 m2 |
| Toilette 02 | 3,10 m2 |
| Schlafzimmer 01 | 16,00 m2 |
| Hauptankleideraum | 13,80 m2 |
| VERANDEN | 46,64 m2 |
| Veranda | 19,10 m2 |
| Veranda 01 | 27,55 m2 |
| OBERGESCHOSS | |
| HAUS | 125,11 m2 |
| Eingangsbereich | 12,80 m2 |
| Eingangsbereich-Treppe | 14,36 m2 |
| Toilette | 5,95 m2 |
| Toilette 01 | 5,80 m2 |
| Toilette 02 | 5,80 m2 |
| Ankleideraum | 10,90 m2 |
| Ankleideraum 01 | 4,90 m2 |
| Ankleideraum 02 | 4,80 m2 |
| Schlafzimmer 01 | 10,70 m2 |
| Schlafzimmer 02 | 10,70 m2 |
| NUTZFLÄCHE | 411,81 m2 |
| HAUS | 319,33 m2 |
| VERANDEN | 63,40 m2 |
| TERRASSE | 29,08 m2 |
| ERDGESCHOSS | |
| Haus | 166,63 m2 |
| Veranden | 47,7 m2 |
| OBERGESCHOSS | |
| Haus | 152,70 m2 |
| Veranden | 15,70 m2 |
| Terrasse | 29,08 m2 |
Verwandte Hausmodelle
Modernes Luxushaus – Modell Oberhausen
Zimmer
Badezimmer
m2
Modernes Luxushaus – Modell Potsdam
Zimmer
Badezimmer
m2
Hochwertiges Fertighaus – Modell Stuttgart
Zimmer
Badezimmer
m2
English