Luxus-Fertighaus – Modell Dortmund
Price
ANMELDEN / REGISTRIEREN, UM PREISE ANSEHEN REGISTRIEREN, UM PREISE ANSEHENDetails
ZIMMER
BADEZIMMER
ETAGEN
m2
Informationen
Modulares Luxushaus über zwei Etagen mit kubischen und minimalistischen Volumen. Die innere Verteilung ist durch die unterschiedlichen Höhen und äusseren Ausführungen der einzelnen Elemente gekennzeichnet. Mit einer Fläche von ca. 220 m2, das Modell Dortmund ist ideal für mittlere und grosse Grundstücke.
Die Verteilung der Räume ist nach Stockwerken organisiert, im Erdgeschoss des modularen Hauses befinden sich die Tageszone: eine grosse Küche mit einem Essbereich, das Wohn- und Esszimmer. Die minimalistische Treppe dieses Designhauses ermöglicht gleichzeitig die Trennung und die Aufwertung von Räumen. Zwei Schlafzimmer und zwei Badezimmer vervollständigen diese Etage.
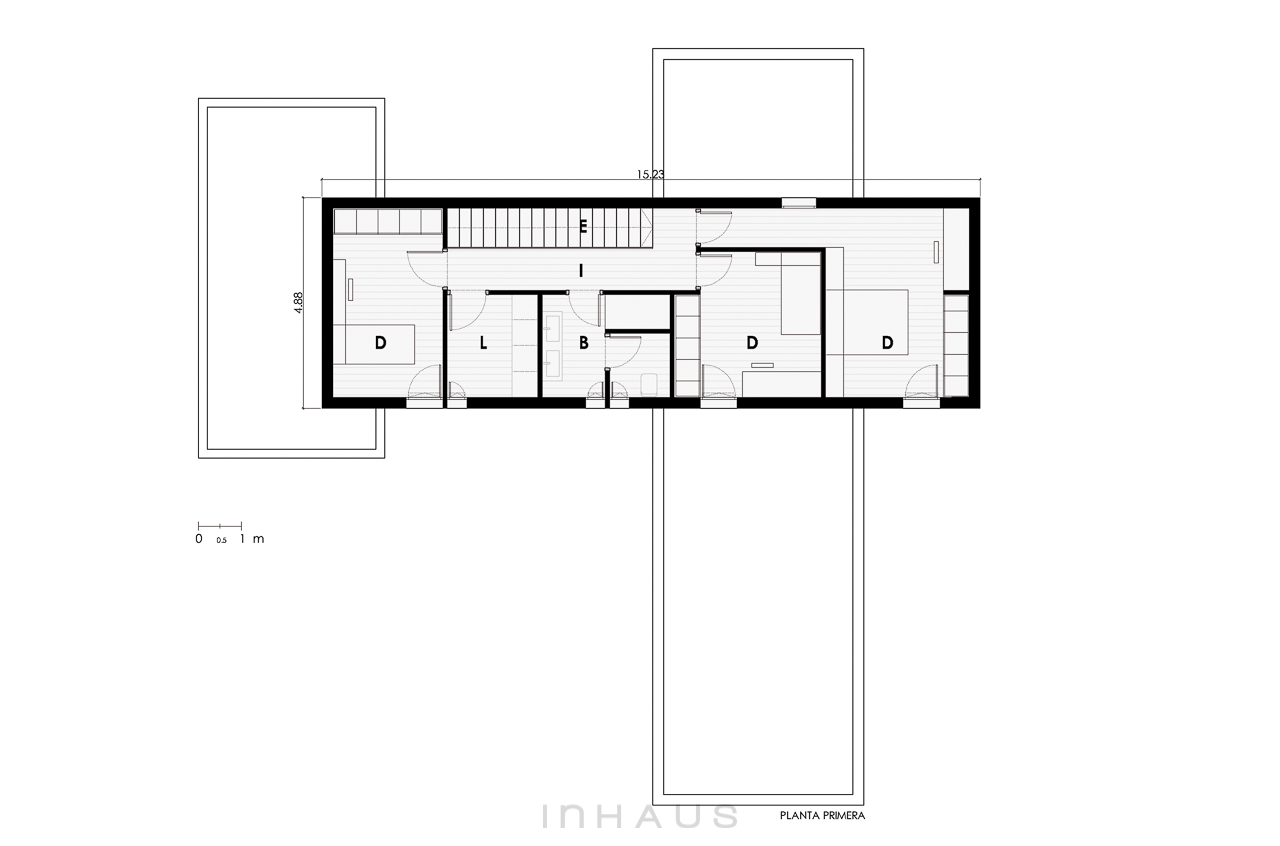
Im zweiten Stock dieses modularen Hauses befinden sich die Nachtbereiche: zwei Schlafzimmer, die sich ein Badezimmer teilen, ein Hauptschlafzimmer mit Ankleideraum und eigenem Bad, sowie einen Arbeitsbereich. Der zentrale Raum dient als Verteilungsraum, um den Raum zu optimieren und Korridore zu vermeiden. Im ersten Stock gibt es noch einen Wasch- und Lagerraum.
Dieses modulare Haus ist von unserem Architektenteam sehr gut untersucht und optimiert worden. Die Kombination der Materialien ist unendlich, so dass Sie aus verschiedenen Optionen und Materialien wählen können, um Ihr vorgefertigtes Designhaus nach Ihren Wünschen zu konfigurieren und anzupassen.
Planzeichnung
Erdgeschoss
Obergeschoss
| WOHNFLÄCHE | 181,22 m2 |
| VERANDEN | 27,41 m2 |
| ERDGESCHOSS | |
| HAUS | 119,67 m2 |
| Eingangsbereich | 12,80 m2 |
| Küche | 19,40 m2 |
| Badezimmer 01 | 4,04 m2 |
| Toilette | 3,42 m2 |
| Ankleideraum | 10,28 m2 |
| Schlafzimmer 01 | 11,11 m2 |
| Hauptschlafzimmer | 11,29 m2 |
| Hauptbadezimmer | 7,42 m2 |
| VERANDEN | 27,41 m2 |
| Veranda 01 | 14,27 m2 |
| Veranda 02 | 13,14 m2 |
| OBERGESCHOSS | |
| HAUS | 61,55 m2 |
| Treppe | 4,42 m2 |
| Verteilungsraum | 6,15 m2 |
| Waschraum | 5,00 m2 |
| Badezimmer 02 | 6,83 m2 |
| Schlafzimmer 02 | 17,10 m2 |
| Schlafzimmer 03 | 10,90 m2 |
| Schlafzimmer 04 | 11,15 m2 |
| NUTZFLÄCHE | 239,14 m2 |
| HAUS | 211,73 m2 |
| VERANDEN | 27,41 m2 |
| ERDGESCHOSS | |
| Haus | 137,41 m2 |
| Veranden | 27,41 m2 |
| OBERGESCHOSS | |
| Haus | 74,32 m2 |
Verwandte Hausmodelle
Modernes Haus aus Beton – Modell Regensburg
Zimmer
Badezimmer
m2
Modernes Haus aus Beton – Modell Dresden
Zimmer
Badezimmer
m2
Modernes Fertighaus – Modell Bogenhausen
Zimmer
Badezimmer
m2
English