Modernes Luxushaus, typologie

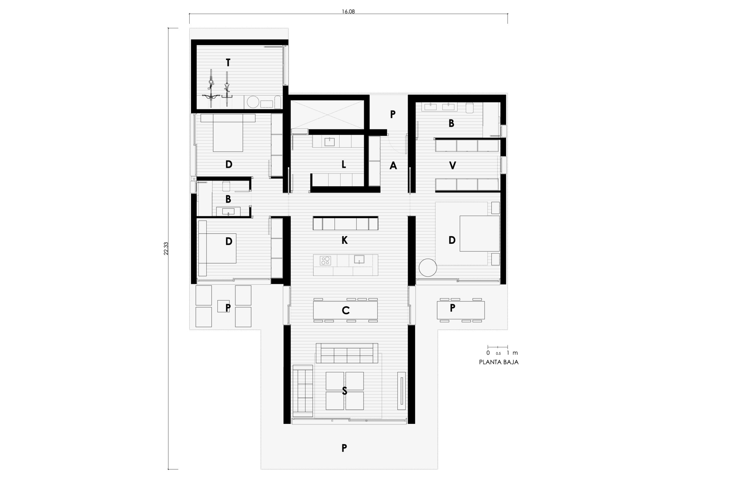
Grundriss der inHAUS modulhaus

Modernes Haus typologie von Luxushaus. Die typologie der verschiedenen inHAUS-Fertighäuser bieten eine große Vielfalt an Möglichkeiten. In der 111 Collection gibt es viele verschiedene Typologien. Eine der drei Klassifizierungen unserer hochwertigen Fertighäuser ist die Morphologie des Grundrisses.


Jeder der Grundrisse der L-, M-, H-, O- und E-förmigen Fertighäuser ist an unterschiedliche Situationen, Bedürfnisse, Landschaften, Geländetypen und sogar Aussichten angepasst.

Typologie modulhaus

L- förmige Häuser

In der modularen Architektur ist der L-förmige Grundriss von modularen Häusern so konzipiert, dass das Haus in der für bestimmte Ansichten am besten geeigneten Weise ausgerichtet werden kann. Einer der am Vorteile ist, dass er Privatsphäre garantiert. Aus diesem Grund ist ideal für den Garten wie es in Spanien üblich ist.

Luxushaus und modulare Haus eignet sich am besten für Grundstücke mit langgestreckteren Formen. Diese L-förmige Typologie ermöglicht auch eine einfache Zonierung. Darüber hinaus bietet es eine große Flexibilität bei der Aufteilung.

M- förmige Häuser

En la construcción de viviendas y en la construcción modular, las casas prefabricadas con planta en forma de M se caracterizan por utilizar diferentes vistas exteriores con diferentes orientaciones. Una casa de lujo son casas más compactas y el diseño arquitectónico ayuda a aprovechar los espacios al aire libre.

Tipología de casa moderna de casa de lujo. Este diseño arquitectónico ayuda a utilizar los espacios al aire libre y también permite el máximo uso de propiedades más pequeñas .

E- förmige Häuser

Modernes Haus typologie von luxushaus. E-förmige oder "kammartige" Häuser sind die typischen Häuser der "Architekturschule". Modernes haus von luxushaus. Das Programm dieser Häuser (Verteilung und Lösung der Bedürfnisse) wird durch eine Wirbelachse organisiert, die den langen Stab des E darstellt. Diese Art von Häusern ist eher für große Grundstücke geeignet. Es gelingt ihm, sehr reiche Außenräume und Umgebungen zu schaffen, in denen die Landschaft in das Haus eindringt.

H- förmige Häuser

Der luxushaus, Grundriss eines H-förmigen Fertighauses bietet als großen Vorteil die maximale Nutzung verschiedener Ausblicke mit unterschiedlichen Ausrichtungen. Diese Typologie ermöglicht es, eine Sommerveranda (nach Norden ausgerichtet) und eine Winterveranda (nach Süden ausgerichtet) zu nutzen.

Sie erfordern große Grundstücke, da das Haus viel Platz einnimmt, und ermöglichen eine bessere Zonierung: die Schenkel oder Flügel des H teilen leicht den Tag- und Nachtbereich oder den Hauptbereich und den Gästebereich.

O- förmige Häuser

La planta de las casas modulares, cuyo diseño tiene forma de letra O, es perfecta para propiedades más pequeñas ya que son casas más compactas. La tendencia actual en inHAUS es la inclusión de un patio interior, que completa aún más claramente la forma. Tipología de casa moderna de casa de lujo.

Este patio hace un gran uso de las vistas que se cruzan. Estas viviendas se vuelven más rentables al reducir los metros lineales de fachada .

inhaus Business Day

Online-Sitzung zur Sensibilisierung für die Vorteile unseres industrialisierten Bausystems und für die Möglichkeiten der Zusammenarbeit.

Erzählen Sie uns von Ihrem Projekt

Schicken Sie uns Ihr Projekt und wir werden es umgehend prüfen. Und wenn Sie sich der inHAUS-Technologie anschließen möchten, laden wir Sie zu einem Besuch unserer Einrichtungen ein.